Einfamilienhaus Chalet Neni in Grindelwald

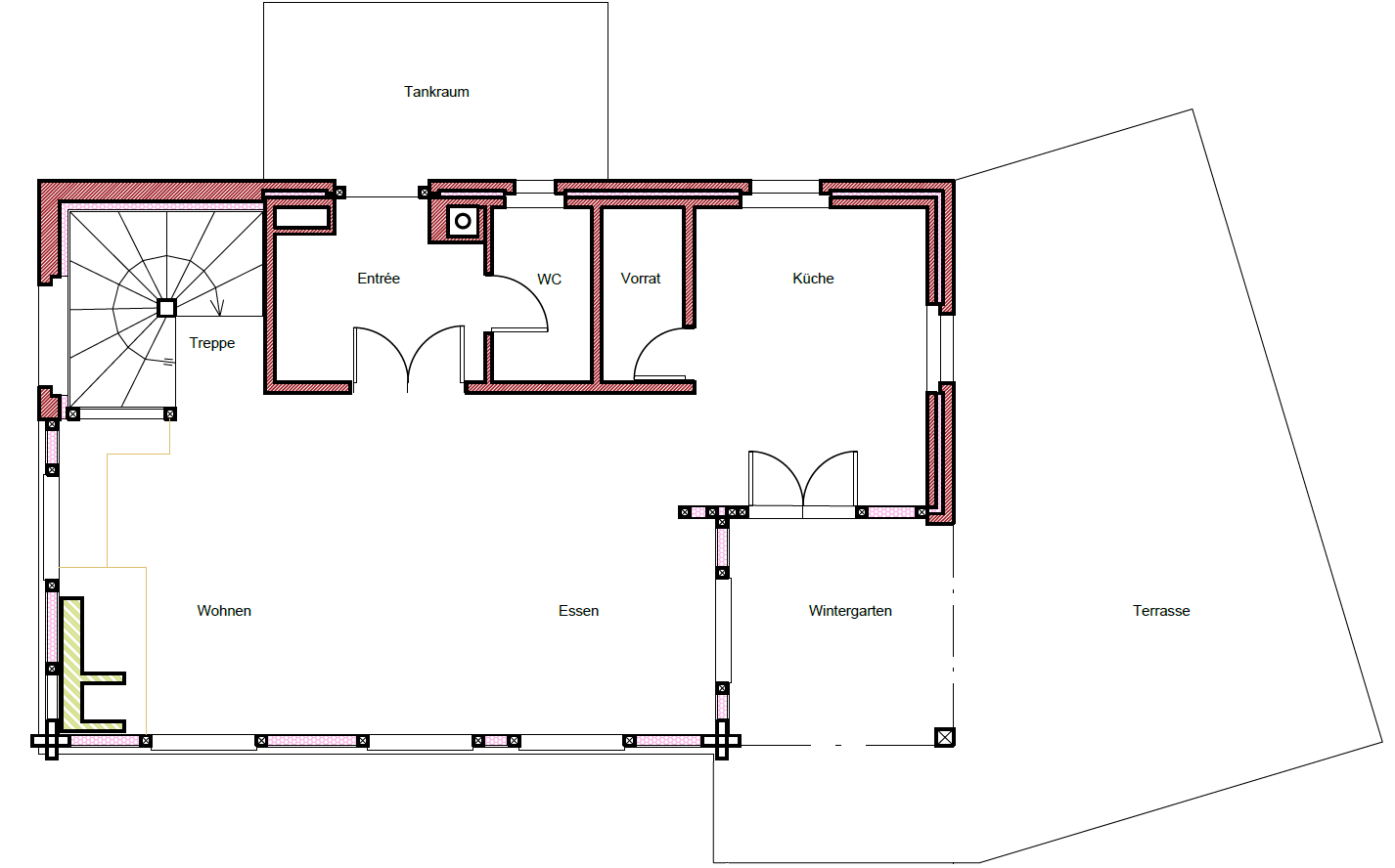
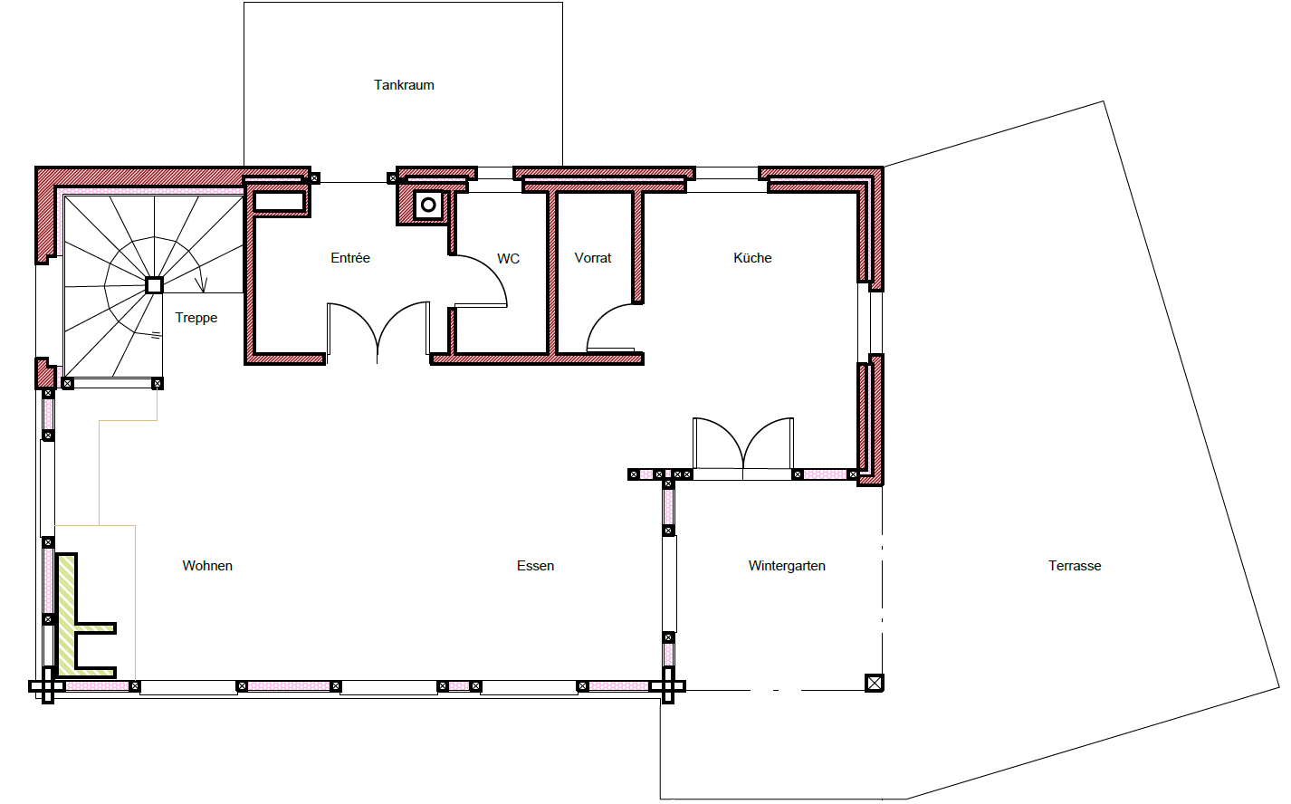
Entdecken Sie dieses wunderschöne 5.5-Zimmer-Einfamilienhaus am ruhigen Endweg in Grindelwald, das kürzlich im Jahr 2024 vollständig renoviert wurde. Das 1987 erbaute Haus bietet auf drei Etagen grosszügige 195 m² Wohnfläche und vereint modernen Komfort mit alpinem Charme.

Das Haus überzeugt mit folgenden Highlights:

 

  • Grosszügige Raumaufteilung: 5.5 Zimmer verteilt auf drei Etagen bieten viel Platz für die ganze Familie

  • Moderne Ausstattung: Komplett renoviert in 2024 mit zeitgemässer Technik und Materialien

  • Gemütlicher Kamin: Sorgt für behagliche Atmosphäre in den kalten Wintermonaten

  • Balkon mit Aussicht: Geniessen Sie die herrliche Bergkulisse der Berner Alpen

  • Garage und Parkplatz: Sichere Unterstellmöglichkeiten für Ihre Fahrzeuge

 

Lage und Umgebung: Das Haus befindet sich in ruhiger Wohnlage mit wenig Verkehrslärm und ist kinderfreundlich gestaltet. Die traumhafte Bergwelt von Grindelwald liegt direkt vor der Haustür und bietet das ganze Jahr über unzählige Freizeitmöglichkeiten.

Dieses Einfamilienhaus ist sofort verfügbar und eignet sich perfekt für Familien, die das Leben in den Bergen schätzen und dabei nicht auf modernen Wohnkomfort verzichten möchten. Eine einmalige Gelegenheit in einer der schönsten Regionen der Schweiz!

Download
Dokumentation
Doku Chalet Neni.pdf
Adobe Acrobat Dokument 3.3 MB

Haben wir Ihr Interesse geweckt? Gerne treffen wir Sie zu einem persönlichen Gespräch und einer Besichtigung!

 

SOLLBERGER IMMO GmbH

Itramenstrasse 44

3818 Grindelwald

 

Telefon: 033 853 30 30

E-Mail: info@sollberger-immo.ch

 

Simon Sollberger: 079 632 83 67

Tanja Sollberger: 078 820 51 59

 

www.sollberger-immo.ch